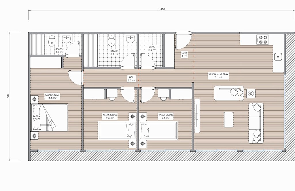
MODERN MODÜL EV – YMOE-4
- Brüt Alan 100 m²
- Ev Tipi 3+1
- Salon 1
- Yatak Odası 3
- Banyo 2
- Modül Sayısı 5
- Taşıyıcı Tır Sayısı 3


Modern Modül Ev-3+1 – 100m²
Modül Ev – Tiny House,
İsterseniz Ofis, İsterseniz Harika Bir Yaşam Alanı
- Modül Ev konforludur. Doğa içinde size evinizde alıştığınız yaşam konforu hatta fazlasını sunar.
- Modül Ev aynı zamanda hibrittir. Enerjisini isterseniz güneşten isterseniz rüzgardan alır.(Opsiyonel)
- Modül Ev elektronik güvenlik sistemleriyle korunur. Siz orada yokken gözünüz arkada kalmaz.(Opsiyonel)
- Modern Modül Ev’in tüm taşıyıcı karkas sistemi çelik olup deprem riski sıfır, güvenliğiniz maksimumdur.
- Modern Modül Ev Lüks Modül Ev modülerdir. İhtiyaçlarınıza göre tasarlanır, boyutlandırılır ve zevkinize özel projelendirilir.
- Modern Modül Ev’in ısı izolasyon değerleri çok yüksektir. Kışın sıcak, yazın serin olmak için tasarlanmıştır.
Modüler Çelik Evler ‘de Fiyata Dahil Olanlar
- Çelik karkas imalatı ve montajının yapılması,
- Dış dekoratif betopan, mineral sıva veya thermowood ahşap ile kaplanması,
- Islak zemin, duvarların yeşil alçıpan, kuru zemin duvarlarında beyaz alçıpan ile kaplanması,
- Tüm duvar ve tavan izolasyonlarının yapılması.
- Dış cephe ve iç cephe boyasının yapılması,
- Elektrik tesisatlarının projeye uygun olarak çekilmesi ve armatürlerinin takılması,
- Sıhhi tesisatın projeye uygun olarak çekilmesi,
- Çift cam pencere ve kapıların temini, montajı,
- Mutfak ve banyo dolaplarının temini, montajı,
- Mutfak ve Banyo armatürlerinin ve vitrifiye ürünlerinin temini, montajı,
- Kuru zemin parke ıslak zemin fayans temini, kaplamaları,
Modüler Çelik Evler ‘de Fiyata Dahil Olmayanlar
- Montaj Sahasının Hazırlanması
- Her türlü hafriyat ve çevre düzenleme işlerinin malzeme ve işçilikleri,
- Isıtma ve soğutma tesisatları (kalorifer,klima vs.) petek radyatörleri ve armatürleri gibi,
- Harici dış bağlantılarının yapılması (elektrik,su,doğalgaz vs.)
- Modüler çelik evin montaj sahasına nakliyesi ve vinç temini,
- Montaj esnasında kullanılacak elektrik temini,
- Modüler çelik evin üzerine kurulabilmesi için su basmanı veya çelik platform yapılaması.
Tüm detaylar için bize bu numaradan hemen ulaşabilirsiniz ; 0 (542) 645 55 60
Not: Fiyatlarımız Türkiye için geçerlidir.
ÜRETİM TEKNOLOJİSİ: Taşıyıcı sistemde DIN EN 10326 standartında S320GD+Z, +AZ Erdemir kalite no:1332, S350GD+Z, +AZ Erdemir kalite no:1335 ve/veya Erdemir kalite no:1322 olan malzeme kullanılmaktadır. Cad-Cam kontrollü tam otomatik continue roll-form makinalarından tek parça olarak çekilmiş İnce Cidarlı Galvanizli C ve U Profiller kullanılmaktadır
MONTAJ: Duvar panelleri, çatı makasları, aşıklar ve arakat montajı Özel Vida ve Cıvata kullanılarak yapılmaktadır
STATİK HESAPLAR: 3. Maddede belirtilmiş olan Türk Standartları ve/veya Uluslar arası Standartlara uygun olarak; yapının kullanım amacına uygunluğu ve yapının bulunduğu bölgeye göre gerekli sismik ve statik hesaplar, proje ve standartlarda belirlenen yük değerlerine göre, Sap2000, CFS, STA4CAD, BRICSCAD, HAYESCAD programları ile yapılmaktadır
DAYANIKLILIK: Dış cephe kaplaması ise CE Belgeli (Yangın ve suya karşı dayanıklı) çimentolu yonga levhadır (Betopan- Fibercement).
TEMEL BETONU: Firmamız tarafından verilecek beton planına (temel boyutları) uygun beton dökülmelidir. Temel dizaynı, statiği, temel ve zemin kaplaması İŞVEREN tarafından yapılacaktır. Bina zemin betonuna ankrajlarla ve çelik dübellerle tesbit edilmektedir. Sertleştirilmiş zemin üzerine demirli radye temel veya çelik hasırlı temel hazırlanmalıdır
TEKNİK DETAYLAR
KAR YÜKÜ: 120 kg/m² , TS 498 (Binanın yapılacağı yerdeki kar yükü ve rakıma göre değişmektedir)
RÜZGAR HIZI: 102 km/saat (50 Kg/m²) TS 498
ARAKAT YÜK KAPASİTESİ: T.S 498’e göre bina kullanım amacı ve türüne göre 200 kg/m² olabilmektedir.
DEPREM HESAPLARI: Etkin yer ivmesi katsayısı: Ao=0,45 (1.derece deprem bölgesi) Bina önem katsayısı (I=1) Hareketli Yük Katılım Katsayısı (n=0,3) Bina kullanım amacı ve türüne göre I=1 /1,2/1,4/1,5n=0,3 /0,6 olarak hesaplanmaktadır.
ISI YALITIMI: Isı Yalıtım Yönetmeliği (8.05.2000)
SES YALITIMI: TS 187 ve TS 854 (DIN 4109)
YANGIN DAYANIMI: DIN 4102 Binaların Yangından Korunması Hakkında Yönetmelik – 2002
DIŞ DUVARLAR
DIŞ DUVAR KALINLIĞI: ~ 120 mm
DIŞ DUVAR YÜKSEKLİĞİ: 2800 mm
DIŞ DUVAR KARKAS: 90 * 45*12,5 (Dx51) Kalite C Profil
DIŞ CEPHE KAPLAMASI: Nem bariyeri + 12 mm Dekoratif Dış Cephe Kaplama (Ahşap / Taş Desen Fibercement- Betopan) + Mineral Sıva
ISI VE SES YALITIMI: 120 mm 50 kg/m³ Taşyünü Yalıtım
DIŞ DUVAR İÇ KAPLAMASI: 12,5 mm Beyaz Alçıpan Kaplama
İÇ DUVARLAR
İÇ DUVAR KALINLIĞI: ~ 120 mm
İÇ DUVAR YÜKSEKLİĞİ: 2800 mm
İÇ DUVAR KARKAS: 90* 45*12,5 (Dx51) Kalite C Profil
İÇ CEPHE KAPLAMASI: 12,5 mm Beyaz Alçıpan Kaplama
ISI VE SES YALITIMI: 50 mm 50 kg/m³ Taşyünü Yalıtım
TAVAN KAPLAMASI
KURU / ISLAK HACİMLER: 12,5 mm Beyaz Alçıpan Kaplama
TAVAN YALITIMI: 50 mm kalınlıkta Camyünü / Mineral Yün
ASMA TAVAN KONSTRÜKSİYONU: Özel olarak dizayn edilen galvanizli RAL 9002 elektrostatik fırın boyalı omega profillerdir
ÇATI
ÇATI KAPLAMASI: 0,50 mm kalınlığında metal kremit kaplama ( Kırmızı Ral 3009 – Yeşil Ral 6020 ) renk11 mm Osb 3 kaplama
TAVAN KARKASI: 90 * 45*12,5 (Dx51) Kalite C Profil
ÇATI TAŞIYICI SİSTEM: 90* 45*12,5 (Dx51) Kalite C Profil
SAÇAK VE SAÇAK HAVALANDIRMASI: Binanın iki cephesinde 40 cm saçak yapılacaktır. Kaplama 10 mm Cimento yonga levha ( Betopan – Fibercement) Terlemeyi önlemek için makas alın V‘lerinde havalandırma menfezi vardır.
DERELER: Metal dereler konulacaktır. Kar yükü fazla olan yerlerde oluşabilecek dere kırılmalardan firmamız sorumlu değildir.
DIŞ KAPILAR
ÖLÇÜ: Projeye Uygun Ölçülerde – PVC Camlı Kapı / Çelik Kapı
KAPI KASASI: 1,2 mm galvanizli sac (Elektrostatik fırın boyalı)(RAL 9002)
KİLİT & KOL: Silindirik kilit / Saten gri renkli metal kapı kolu
İÇ KAPILAR
ÖLÇÜ: 800*2000 mm / Melamin Kapı
KAPI KASASI: 40 mm Ahşap kapı kasası ve 85 mm melamin kapı pervazı
KİLİT & KOL: Silindirik kilit / Saten gri renkli metal kapı kolu
PENCERELER
NORMAL / VASİSTAS PENCERELER: Egepen Deceuninck pencereler kullanılır.
NORMAL PENCERELERDE: 4+16+4 mm çift cam
VASİSTAS PENCERELERDE: 4 mm kalınlığında buzlu cam
BOYALAR
DIŞ CEPHE: Çift kat silikonlu dış cephe
İÇ CEPHE: Çift kat silikonlu iç cephe boyası
TAVAN: Çift kat plastik boya
ARAKAT ŞASE SİSTEMİ
KARKAS: Rollforming makinelerinde özel olarak şekillendirilmiş profillerden oluşmaktadır. Arakat Çelik konstrüksiyonu galvanizli özel büküm profillerden oluşmaktadır
ŞASE ÜSTÜ KAPLAMA: 16 mm Betopan (Yanmaz, Sudan etkilenmez, B1 Sınıfı)
TAŞIMA KAPASİTESİ: Binanın kullanım amacına göre TS 498’den alınmaktadır.
MERDİVEN KARKAS: 90* 45*12,5 (Dx51) Kalite C Profilden hazırlanan merdiven iskeleti
MERDİVEN KAPLAMA: 16 mm Betopan (Yanmaz, Sudan etkilenmez, B1 Sınıfı, Presle Güçlendirilmiş)
ELEKTRİK TESİSATI (SIVA ALTI)
AYDINLATMAARMATÜRLERİ: Normal Mekan Konut, Normal Mekan Ofis, Islak Mekanlar ve Dış Mekan Üstü kapsam dışıdır.
KABLO: Prizler (3×2,5 mm² NYM), Aydınlatma (2×1,5 mm² NYM)
PRİZ DÜĞMELERİ: Prizler, Anahtarlar
SIHHI TESİSAT (SIVA ALTI)
TEMİZ SU BORULARI: Yüksek kalite kırılmaz PVC boru kullanılmaktadır
PİS SU BORULARI: Yüksek kalite kırılmaz PVC boru kullanılmaktadır

















































“Modern Modül Ev-3+1 – 100m²” için yorum yapan ilk kişi siz olun