Özelikler
| KAT-SAYISI | Çift Kat |
|---|---|
| BİNA-YUKSEKLİGİ | 250 cm |
| CATİ-KAPLAMASİ | Boyalı Galveniz Sac, (Metal Kiremit / Opsiyonel, Shingle / Opsiyonel) |
| DİS-CEPHE | Betopan |
| DIŞ DUVAR KALINLIĞI | 10 cm |
| İC-DUVAR | 6 cm |
| ELEKTRİK-TESİSATİ | Sıva Altı |
| DİS-KAPİ | Çelik Kapı |
| İC-KAPI | Amerikan Göbekli Kapı |
| BANYO-SAYISI | 1 Adet |
| KOSE-KAPLAMA | Tüm Köşeler İçin Estetik Betopan Köşe Kaplamaları |
| ODA-SAYISI | 4+1 |
| PENCERELER | Kurşunsuz PVC Pencere PAKPEN |
| SIHHİ-TESİSAT | Sıva Altı |
Prefabrik Bina Kesiti


Prefabrik Evler ‘de Fiyata Dahil Olanlar
- Konut Malzemelerinin İndirilmesi ve Montajı
- Konut İç ve Dış Boya İşlerinin Uygulanması
- Konut İç ve Dış Kapıların Montajı
- Konut Pencerelerin Montajı (Çift Cam PCV)
- Sıva altı elektrik ve su tesisatının çekilmesi
- Elektrik Armatürlerinin Montajı
- Duş Teknesi, Klozet, Lavabo ve Bataryaların Paket Halinde Müşteriye Verilmesi
Prefabrik Evler ‘de Fiyata Dahil Olmayanlar
- Zemin betonu ve her türlü hafriyat işleri,
- Zemin ve duvar kaplama işleri (şap, seramik, fayans, halı vs.),
- Binanın kurulması için gerekli resmi izinlerin alınması,
- Bina ile zemin betonu arasındaki her türlü yalıtım işleri,
- Telefon ,bilgisayar ve UPS tesisatları,
- Elektrik ana dağıtımı ve her türlü topraklama hattı,
- Elektrik ve su sayacı,
- Bina harici dış bağlantılar (elektrik, pis su ve temiz su vs.),
- Isıtma ve soğutma tesisatları (kalorifer, klima vs.),
- Mutfak alt üst dolapları ve banyo dolapları,
- Nakliye ve nakliye sigortası,
- İstanbul dışı montajlarda montaj ekibinin konaklama ve yemek ihtiyacı alıcıya aittir.
Tüm detaylar için bize bu numaradan hemen ulaşabilirsiniz ; 0 (542) 645 55 60
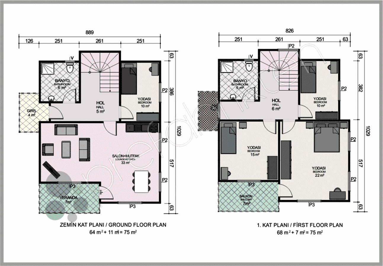
150 m² Dubleks Prefabrik Ev
Prefabrik evler son yıllarda oldukça fazla kişi tarafından tercih edilmektedir. Bu evlerin bu kadar fazla tercih edilmesinin en büyük nedeni eski evlere göre daha fazla avantajlara sahip olmasıdır. Prefabrik evler dilendiği zaman taşınabilme özelliğine sahiptir. Aynı zamanda yapılan testlerde prefabrik evlerin eski tip evlere göre daha dayanıklı olduğu belirlenmiştir. Eski tip evler sık bir şekilde tamir ve tadilat gerektirmekteydi. Prefabrik evler ise dayanıklılık özelliği sayesinde uzun süre boyunca ilk günkü kadar temiz bir şekilde kullanılabilmektedir.
Şirketimiz uzun yıllardan beridir prefabrik evlerin üretimini yapmaktadır. Şirketimiz tarafından üretilen prefabrik evler öz3el malzemelerden yapılmaktadır. Üretimin ardından kişilerin güvenliği bakımından özel testlere tabi tutulan prefabrik evler, dayanıklılığı kontrol edilmektedir. Testlerden başarılı bir şekilde geçen prefabrik evler anında servis araçlarına bindirilerek sahibinin adresine götürülmektedir. Yolculuk sırasında tüm güvenlik önlemleri alınmaktadır. Prefabrik evler adreslere götürüldüğü zaman da özel kurulum elemanlarımız tarafında kurulumu yapılmaktadır. Kurulumu yapılan evlere anında taşınabilirsiniz. Şirketimiz prefabrik evleri oldukça kısa bir süre içerisinde hazırlamaktadır. Siparişinizin hemen ardından başlayan üretim işlemleri oldukça kısa bir süre içerisinde son bulmaktadır.
150 m² Çift Katlı Prefabrik Evler günümüzde oldukça fazla kişi tarafından tercih edilmektedir. Bu evlerin bu kadar fazla tercih edilmesinin en büyük nedeni oldukça ideal ölçülere sahip olması ve oldukça ideal görünüme sahip olmasıdır. Birden fazla tasarım özelliğine sahip olan 150 m² Çift Katlı Prefabrik Evler kişilerin alanlarına özel bir şıklık kazandırmaktadır. Dilediğiniz ölçülere sahip prefabrik evleri şirketimiz tarafından sipariş verebilirsiniz. Şirketimiz tüm prefabrik evleri oldukça uygun fiyatlara sunmaktadır.
Şirketimiz müşterilerine daha iyi bir şekilde hizmet vermek adına 7 gün 24 saat hizmet veren müşteri hizmetlerine hizmet sunmuştur. Prefabrik evler hakkında tüm sorularınızı şirketimizin müşteri hizmetlerine ulaşarak yönlendirebilirsiniz. Şirketimizin deneyimli müşteri hizmetleri tüm sorularınıza en açıklayıcı bir şekilde cevap verecektir. Aynı zamanda prefabrik ev fiyatlarını da şirketimizin müşteri hizmetlerinden öğrenebilirsiniz.
Firmamızdan yapacağınız prefabrik ev alışverişlerinde ödemelerinizi peşin yapabileceğiniz gibi, prefabrik ev siparişi verildiği anda %70 ‘ı peşin, geri kalan %20′ lik kısmı prefabrik evin kurulumunda kaba işçilik bitip boya işlemine geçmeden önce, kalan %10′ luk kısmı ise eviniz teslim edildiğinde yapılabilmektedir. Firmamız prefabrik evlerinizi en az 10 gün en fazla da 25 gün içerisinde üretimini gerçekleştirmektedir.
















“Dubleks Prefabrik Ev 150 m²” için yorum yapan ilk kişi siz olun